A new public-facing research and innovation centre reconnecting Lisbon to its maritime edge.

An Open Infrastructure for Research, Culture, and Urban Life by the Sea
CLOU architects’ proposal for the Hub do Mar reimagines Lisbon’s Pedroços Dock as a new destination for the city’s Blue Economy. As part of the government-led rejuvenation of the Lisbon waterfront, the project integrates offices, laboratories, and public amenities, enhancing walkability along the riverfront and extending the cultural promenade towards the sea. The design embraces the existing industrial structure while introducing new, flexible interventions, including a floating observation deck, to promote social, scientific and ecological engagement. The Hub do Mar seeks to catalyse innovation while offering a dynamic civic space connecting Lisbon and Oeiras.

Connecting City and Sea
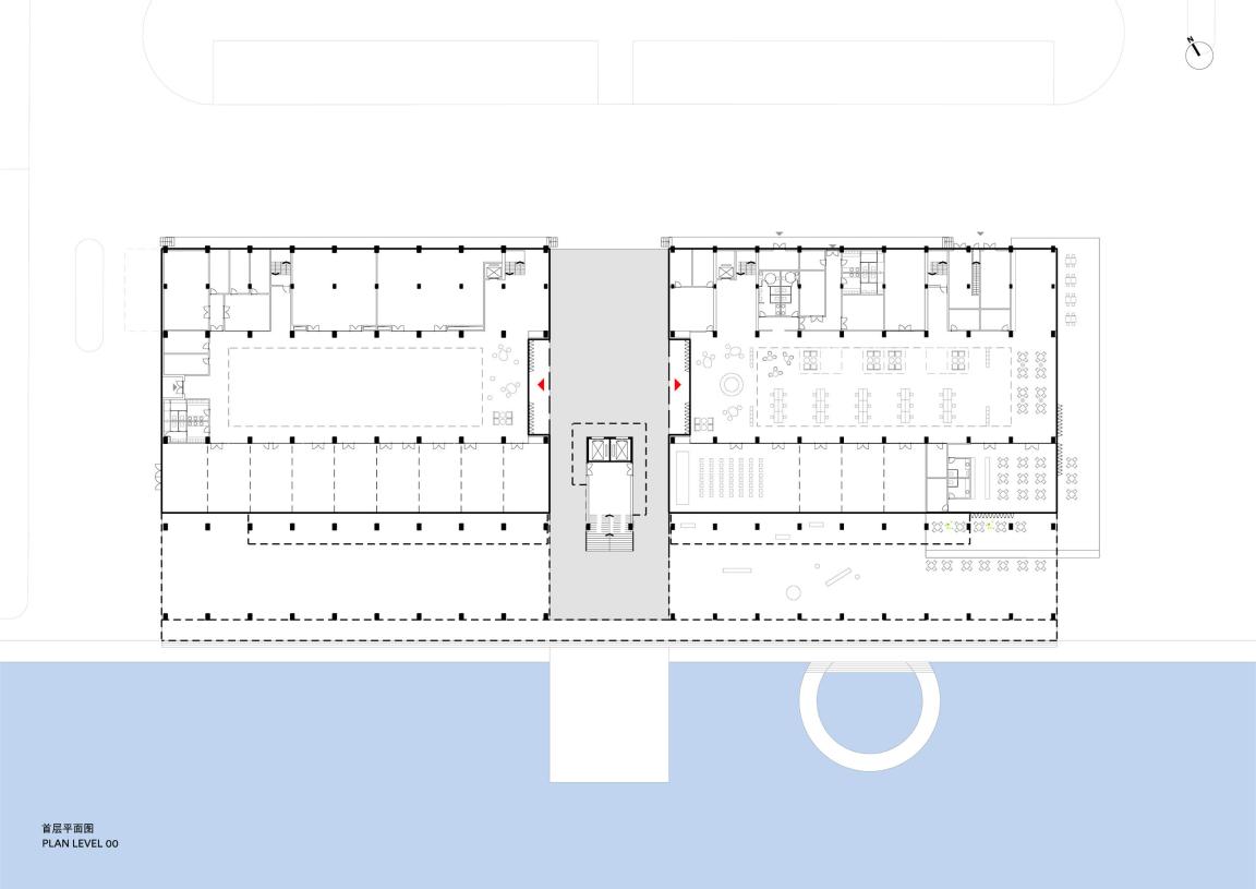
Located at the western edge of Lisbon, between the Champalimaud Foundation and the Tejo estuary, the Hub do Mar site is strategically placed to expand the city’s riverfront public space. CLOU architects’ proposal strengthens this link by transforming a disused industrial site into an open, multifunctional research hub, embedded in the wider landscape and urban flows. The public esplanade is extended into the site, blending pedestrian infrastructure with scientific and leisure uses.

Adaptation and Flexibility
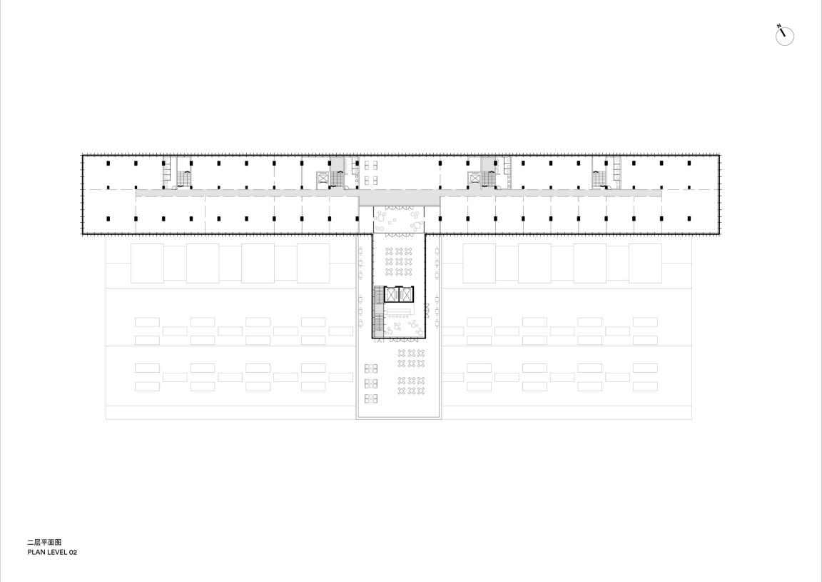
The existing structural shell is preserved and reinforced to meet seismic and flood resilience standards, minimising embodied carbon while respecting the site’s heritage. A new three-storey wing replaces a demolished section to house labs and co-working areas. The spatial layout is designed for flexibility: central areas can open up into large-scale event halls or subdivide into smaller functional units. Temporary partitions, modular furniture, and open circulation zones support a wide range of future uses, from start-up incubators to marine research facilities.

Activating the Waterfront
A key design gesture is the open portico, which transforms the former loading bays into a shaded civic promenade, establishing a seamless transition from land to water. This semi-public space supports informal gatherings, exhibitions, and waterside activities, while a stepped plaza at the centre of the site creates a focal point connecting the north and south wings. Above, a panoramic sky deck and rooftop pavilion introduce new public programming — from seasonal dining to cultural events — with unobstructed views over the Tejo and the Atlantic horizon.



Landscape Integration
The landscape strategy uses continuous in-situ concrete paving inspired by the site’s industrial past. It defines circulation while accommodating technical requirements for loading and access. Timber seating, low planting, and native tree species create a comfortable microclimate and visual rhythm. The proposal also includes green infrastructure such as stormwater collection and localised biodiversity pockets, reinforcing the ecological potential of the site.

Towards an Urban Blue Economy
Designed as a catalyst for Portugal’s maritime future, the Hub do Mar positions research, sustainability and innovation at the heart of Lisbon’s waterfront transformation. More than a building, it proposes an adaptable public infrastructure — where science meets the sea, and citizens meet the city’s evolving edge.


