Two-phase residential-led development with integrated retail, panoramic mountain views, and native landscape design.

Creating a New Community in Monterrey
Orange Residences Monterrey is a two-phase mixed-use development that integrates residential, retail, and parking functions within a shared podium. Located in Monterrey, Mexico, the project provides over 47,000 sqm of built-up space, offering expansive views of the surrounding mountains. With its ecologically sensitive landscape strategy and community-focused amenities, Orange Residences Monterrey sets a new benchmark for urban living in the region.

Two Phases, One Cohesive Plan
Orange Residences Monterrey is planned in two phases. Phase 1 includes 10,355 sqm of residential space across 84 units, 1,682 sqm of retail, and 686 sqm of office space. Phase 2 delivers 11,057 sqm of residential space across 90 units and 2,294 sqm of retail, including a 426 sqm supermarket. Both phases are supported by a total of 515 parking spaces, all integrated within a common podium.

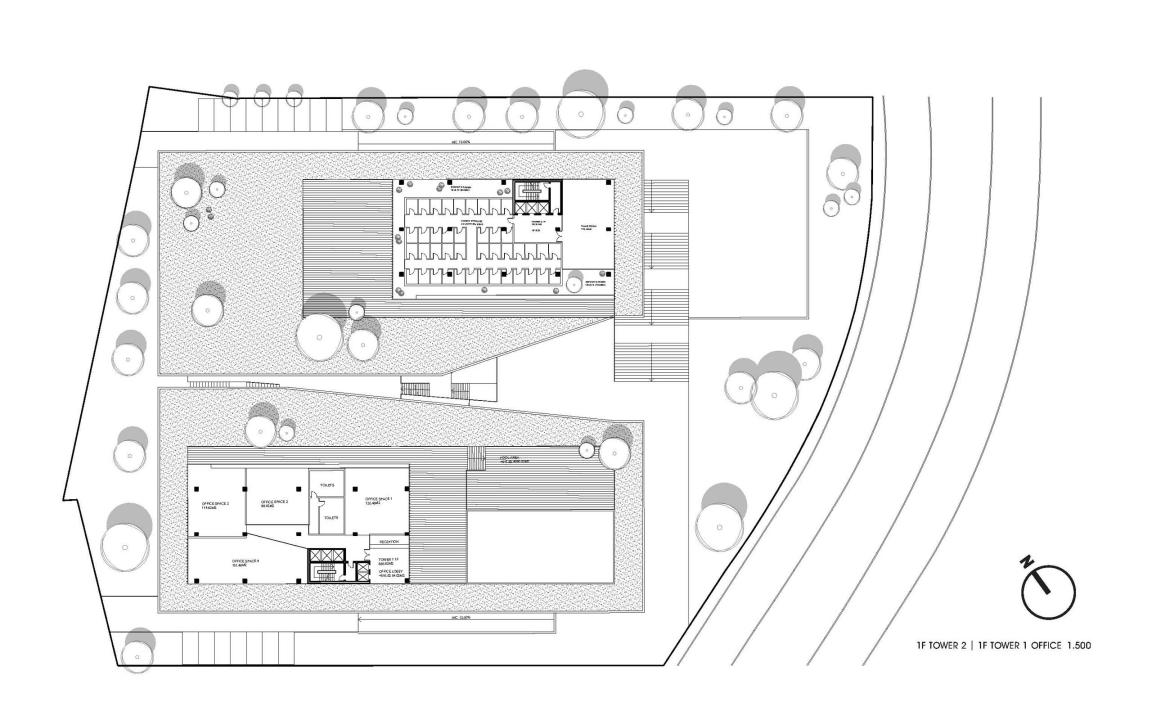
Shared Podium and Public Realm
The two phases are united by a shared podium structure that concentrates commercial activity and parking. At ground level, a public plaza forms the heart of the site, encouraging pedestrian activity and access to retail. The podium allows upper floors to benefit from open views and increased privacy, creating a layered and dynamic urban form.


Residential Typologies and Layout
Residential units are organised across a high-rise format, with types A, B, and C distributed across both phases. The upper levels are topped by dual-level penthouses that provide uninterrupted 360-degree views of the city and surrounding mountains. Private balconies, rooftop terraces, and garden patios create a seamless transition between indoor living and outdoor space.

Ecological Landscape Strategy
The project embraces a sustainable landscape approach, incorporating nearly 100 trees and more than 15,000 water-efficient plants, many of which are native to the region. Cacti and other drought-tolerant species echo the desert landscape of northern Mexico while reducing water consumption. Shaded courtyards and gardens offer communal areas for relaxation, with a particular focus on elderly-friendly spaces.

Amenities for Community Living
Orange Residences Monterrey includes a full suite of amenities: four swimming pools, a spa and fitness centre, an on-site art gallery, and a community market. These features are designed to foster interaction and well-being while enhancing the everyday life of residents.

Architecture Responding to Context
The architectural form is shaped by views and topography, twisting as it rises to capture the natural beauty of Monterrey’s mountains. With a focus on natural light and ventilation, the design creates homes that are both private and connected to their environment. Simple, effective planning ensures efficient vertical circulation and clear separation of uses.

